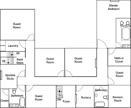
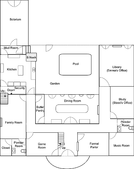
The Steed Estate Floor Plans Ground Floor First Floor Attic Cellar Share this: Share on X (Opens in new window) X Share on Facebook (Opens in new window) Facebook Like Loading...